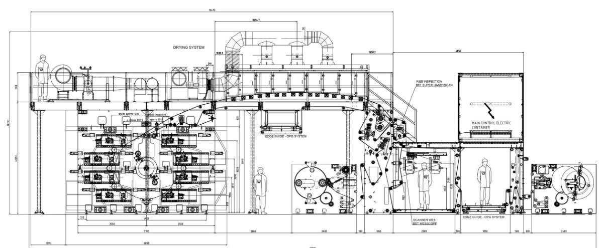
Широкорулонные флексографские печатные машины Flexomaster HR600 / HR500 производства Echaar Equipments (Индия) позволяют запечатывать широкий диапазон рулонных материалов на скорости 600 или 500 метров в минуту спиртовыми или водными красками. Ширина печатного полотна может варьироваться от 1200 до 1800 мм, количество печатных секций от 8 до 10.
Станина печатного блока машины представляет собой две монолитные боковые рамы, которые изготовлены из прочной нормализованной стали толщиной 120 мм. Это обеспечивает необходимую жесткость, устойчивость и демпфирование, предотвращая появление каких-либо вибраций при печати. Стальной центральный печатный цилиндр с защитным покрытием Hastelloy и двойными стенками установлен на самоцентрирующихся роликовых подшипниках и оснащается системой рециркуляции с водяным охлаждением для поддержания постоянной температуры по всему цилиндру. Высокоточный цифровой энкодер соединен с осью печатного цилиндра для идеальной синхронизации центрального цилиндра с формными и анилоксовыми валами.
Машина оснащается большим количеством автоматизированных функций для минимизации времени и сокращения потерь при смене тиражей, повседневной эксплуатации, очистки и обслуживания. Благодаря возможностям автоматизации замена оператором формных и анилоксовых валов занимает считанные минуты без использования каких-либо дополнительных инструментов.
Машина имеет дружественное и интуитивное управление и оснащается центральным пультом управления с несколькими сенсорными экранами, а также дополнительными переносным пультами, размещенными на блоке с печатными секциями, а также размотке и намотке.
Ключевые особенности:
- Прямой сервоприводной бесшестеренный привод центрального цилиндра
- Безостановочные турельные размотки и намотки с автосклейкой
- Автоматизированная смена гильз и анилоксов
- Программное управление подачей краски и автоматическая смывка (PLC)
- Полностью автоматическое открытие и отведение всех печатных секций для быстрой смены гильз (не более 20 сек. на все секции)
- Высокотехнологичные закрытые ракельные камеры из углеродного волокна
- Высокоэффективные сушильный туннель и межкрасочные сушки
- Библиотека тиражей со всеми параметрами
- Система контроля концентрации паров растворителя (LEL)
- Переносные пульты управления дополнительно к главной панели управления
- Система подавления биения (ATFF/LECO)
- Автоматическая система предварительной приводки для быстрой переналадки и поддержание автоматической приводки
- Автоматическая настройка натисков
- Автоматическое сервоприводное позиционирование печатных секций
- Интуитивный интерфейс управления
- 100% автоматический видеоконтроль дефектов
- Smart Plate Positioning — точная приводка форм и настройка натиска по данным, передаваемым с устройства монтажа форм Echaar SPP (вкл. топографию формы)
Опции:
- Система коронной обработки
- Автоматическое поддержание вязкости краски
- Система автоматической очистки барабана
- Система 100% автоматической инспекции полотна
























